Новый центр здоровья в Копенгагене сочетает в себе обилие дневного света, натуральные материалы, зелень и пространство для движения и общения в сообществе, что способствует реабилитации и лечению заболеваний, связанных с образом жизни. Спроектированное датской архитектурной студией Dorte Mandrup, здание отличается впечатляющим центральным пространством, образованным скульптурным ритмом деревянных арок высотой 15 метров.

Окружающие нас здания и ландшафты могут оказывать глубокое влияние на наше поведение, эмоции и физическое здоровье. Учитывая это, датская архитектурная студия Dorte Mandrup спроектировала Центр здоровья в Копенгагене с целью поощрения физической активности и улучшения качества жизни людей, страдающих заболеваниями, связанными с образом жизни. Благодаря приоритету зелёных зон, обилию дневного света, натуральных тёплых материалов, движению и местам, где люди могут встречаться и взаимодействовать, архитектура создаёт привлекательное и успокаивающее место, которое избегает зачастую безликого и клинического характера традиционных медицинских учреждений.

"С помощью Центра здоровья мы хотели создать пространство, которое не только способствовало бы улучшению качества жизни людей, проходящих лечение, но и активно подталкивало бы их к более здоровому образу жизни. Дизайн разрабатывался в рамках инклюзивного процесса сотрудничества с будущими пользователями, сотрудниками и центральной администрацией, что позволило нам изучить функции, пространственность, тактильные ощущения и материалы, которые отвечают их конкретным потребностям и способствуют реабилитации. Важным соображением было обеспечить пространство для взаимодействия и общения в сообществе, поскольку это чувство принадлежности и единения является важной частью того, чтобы сделать лечение более доступным, увлекательным и поддерживающим." — говорит Дорте Мандруп, основатель и креативный директор.


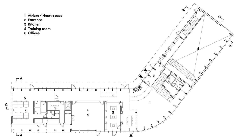
Тепло и домашний уют проникают во внутренние помещения благодаря открытой деревянной облицовке стен и потолка – некоторые из них с перфорацией для регулирования звука – выбранной за её способность обеспечивать комфорт, улучшать качество воздуха в помещении и снижать стресс. По прибытии вас встречает открытый атриум, сформированный в виде впечатляющей несущей конструкции, состоящей из трёхшарнирных арок из клееного бруса высотой 15 метров. Эта центральная общественная зона была названа Сердечной комнатой, и, подобно сердцу, она подключается к кровеносной системе здания и связывает различные функции воедино. Отсюда есть доступ к классным комнатам, помещениям для физических тренировок, кабинетам для консультаций, открытым помещениям для совещаний и кухне для проведения мастер-классов по приготовлению здоровой пищи.

Большая деревянная лестница со встроенными креслами образует место встречи в центральном атриуме, где люди могут собираться и взаимодействовать друг с другом, что позволяет проводить спонтанные мероприятия и социальные встречи. Внутренние помещения освещаются мягким естественным светом, проникающим через большие окна на фасаде и крыше, которые постоянно дарят новые впечатления в течение всего дня.

Отражая и контрастируя с этим контекстом, расположенный у входа в любимый копенгагенский район "Де Гамлес Бай" (Город пожилых людей), новый центр здоровья является частью района, который долгое время был синонимом заботы, здоровья и благополучия. Первоначально построенный в 1892 году как больница и дом престарелых в городе, комплекс "De Gamles By" был спроектирован таким образом, чтобы создать успокаивающую, самодостаточную деревенскую атмосферу, воплощая концепцию совместной жизни для тех, кто больше не в состоянии заботиться о себе. Сегодня этот район был переосмыслен как открытая общественная среда, предлагающая различные общественные услуги и уникальное место для отдыха в густонаселенном районе Нерребру.

Новый центр здоровья вдохновлён двускатными мотивами и коньковыми крышами, характерными для окрестностей, и в то же время представляет собой современный контраст с существующими зданиями. Здание имеет форму плавно изогнутой арки, которая выходит в сад. Чёрно-коричневые металлические листы охватывают и укрывают внутренние помещения, выходящие на улицу, подобно защитной оболочке, натянутой с крыши на фасад. В крышу органично встроены солнечные батареи площадью 164 квадратных метра, которые будут вырабатывать и накапливать возобновляемую энергию. Внутренняя деревянная конструкция является заметной деталью внешнего фасада, а также глубоких планок, которые спускаются до уровня улицы, обеспечивая защиту от солнечных лучей. В сторону сада здание выходит полностью стеклянным фасадом, который пропускает естественный дневной свет и визуально соединяет интерьер с зелёными открытыми пространствами.

Центр здоровья был создан по инициативе города Копенгагена для удовлетворения растущего спроса на реабилитацию и лечение людей, страдающих заболеваниями, связанными с образом жизни, включая сахарный диабет 2 типа и болезни сердца. Диабет является одним из самых быстрорастущих хронических заболеваний в мире, и ожидается, что к 2045 году число людей с сахарным диабетом 2 типа только в Копенгагене увеличится с 20 000 до 33 000 человек. Расположенный недалеко от многих близлежащих научно-исследовательских учреждений, включая Онкологический центр и университетскую больницу Копенгагена, центр будет играть важную роль в жизни многих жителей Копенгагена, нуждающихся в уходе, и вносить свой вклад в исследования по будущей профилактике, лечению и реабилитации.
