Американская архитектурная студия Studio Gang завершила строительство Центра отдыха Ширли Чисхолм в Центральном Бруклине. Это здание из рельефного кирпича включает в себя фитнес-центр и общественные пространства для жителей района. Проект, названный в честь первой темнокожей женщины, избранной в Конгресс США, Ширли Чисхолм, является частью системы Департамента парков и зон отдыха Нью-Йорка (NYC Parks) и расположен в Ист-Флэтбуше.

Трёхэтажное здание с зубчатым кирпичным фасадом украшено узкими полукруглыми и прямоугольными окнами. В здание можно попасть по общественной дорожке, которая проходит между фитнес-центром и соседней школой, так как здание расположено на центральной парковке. Его верхние этажи облицованы панелями из рифлёного металла и возвышаются над кирпичным фасадом. По мнению Studio Gang, скошенный фасад здания выполняет двойную функцию: он создаёт «эффект приветствия» и обеспечивает естественное освещение и обзор внутренних помещений.

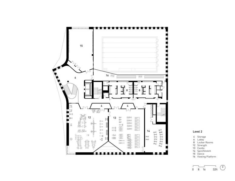
Большие арочные окна, врезанные в плавно изогнутый кирпичный фасад, подчёркивают гостеприимство здания и наполняют его естественным светом и видами. Внутри здания расположены двухуровневый спортивный зал и бассейн по обеим сторонам здания. Между двумя большими помещениями расположены небольшие пространства для кабинетов персонала, раздевалок, танцевальных студий, силовых и кардиотренировочных залов.

Вырезы, смотровые площадки и внутренние окна обеспечивают обзор всего внутреннего пространства здания. В вестибюле находится ярко-оранжевая парадная лестница, а среди других элементов интерьера — клееные деревянные балки над зоной бассейна, изделия из дерева ручной работы и произведения искусства художницы Ванессы Герман, в том числе серия бюстов.



Команда стремится получить для проекта сертификат LEED Gold. Среди элементов, которые будут включены в проект, — высокоэффективная теплоизоляция, озеленение для отвода ливнёвых вод и встроенная система зарядки электромобилей. По данным Департамента парков Нью-Йорка, это самый большой центр отдыха в Бруклине площадью 6874 квадратных метра, а также «первый в истории» центр отдыха в Центральном Бруклине. Мэр Нью-Йорка Зоран Мамдани объявил об открытии центра на этой неделе.


«Ширли Чисхолм считала, что политика должна быть подотчетна простым людям», — сказал Мамдани. В этом смысле этот центр станет живой данью уважения её наследию и доказательством того, что, инвестируя в по-настоящему доступные общественные пространства, мы можем построить город, который будет удобен для всех нас.
